Engineering & Prototype Design. UK CAD technician
Onsite CAD Services Ltd. Brough
Engineering & Prototype CAD drawing service
All the CAD drawing services you will need to have a project designed & fabricated.
- Engineering drawings
- Prototype 3D models
- Fabrication drawings
- DXF files for CNC cutting
- Sheet metal drawings
What ever your level of engineering knowledge. If you are a skilled engineer or complete novice, having & working with your own CAD technician will save you time & money. The more time you spend on the design, the less time & money you will spend filling the scrap bin up.
I can work from your drawings, sketches & photos for small projects or I can meet up with you at your facility with a mobile cad system & go into greater detail for more complex or large site orientated projects.
List of services
-
Where to startList Item 1
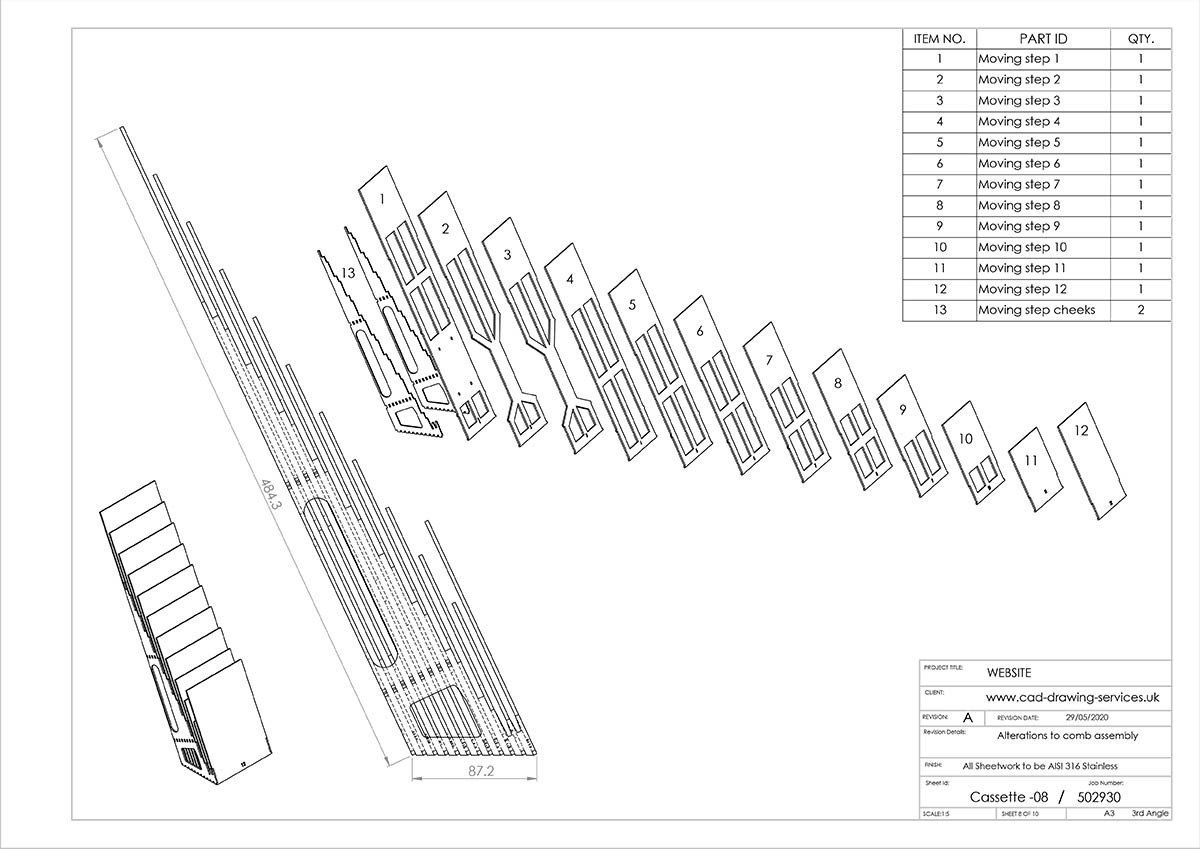
I first produce a master blueprint connecting 2d sketches & reference planes in XYZ. All fabricated parts are derived from this blue print so any alteration to the blue print cascades through the design.
- Parts
- Assemblies
- drawings
-
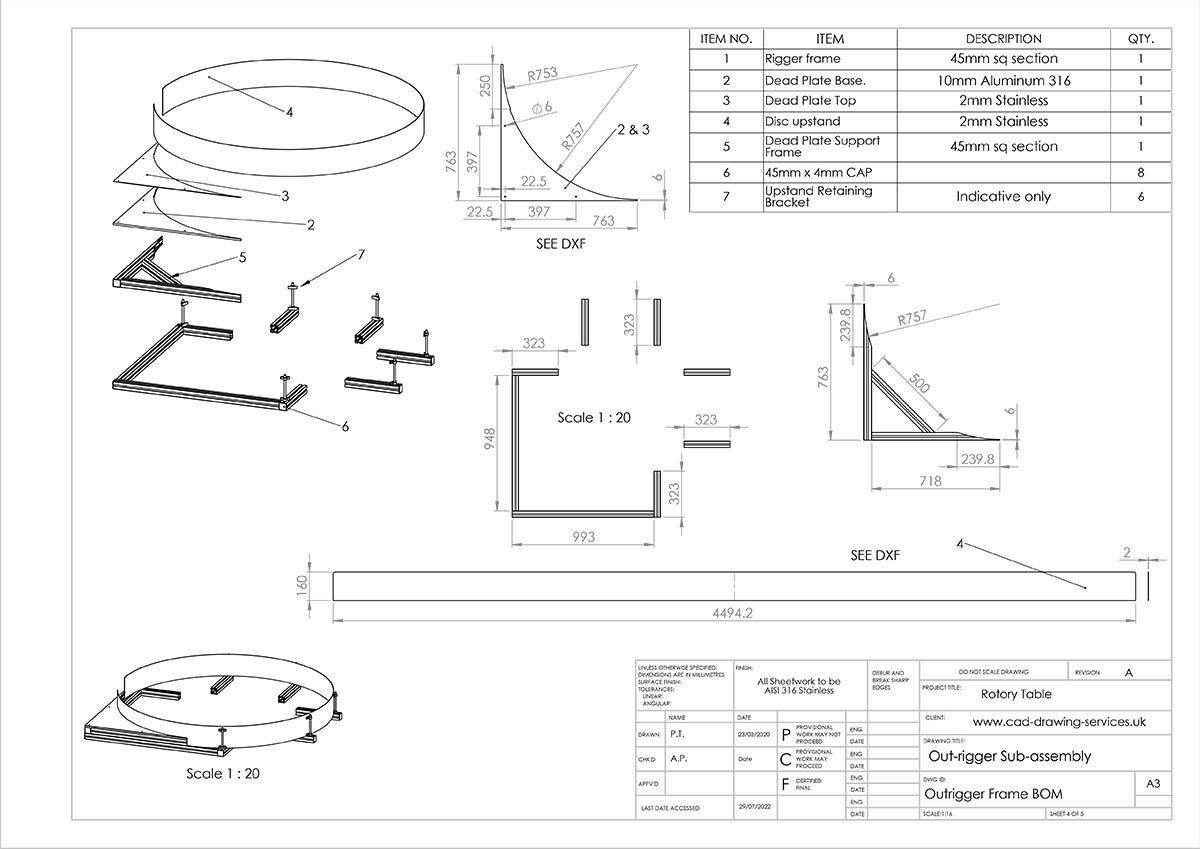
3D AssembliesList Item 2
3D assemblies are made by joining parts together with rules that replicate the physical world such as parallel, offset, rotate, absolute & rotate about, touch another point etc
The parts can be given mass & material or visual attributes such as glass or steel
-
3D ModelList Item 3
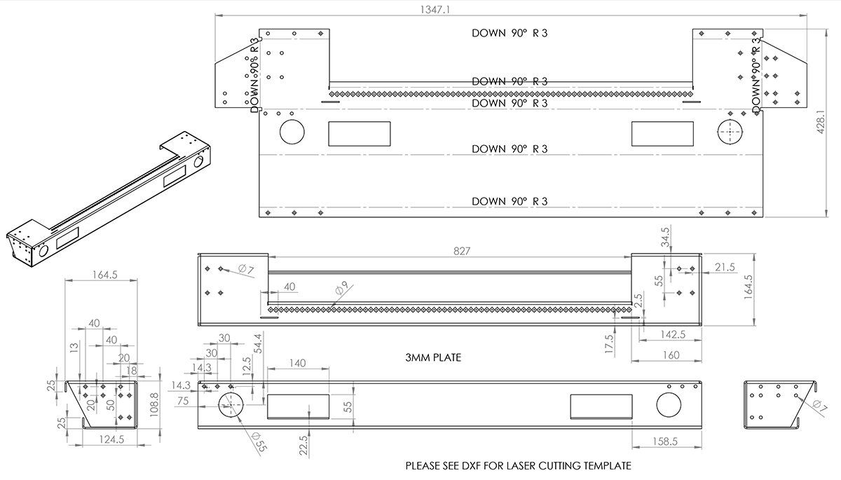
We now have a 3D model that we can check for clashes & interference issues.
Any problems can corrected before any machining or fabrication is started.
-
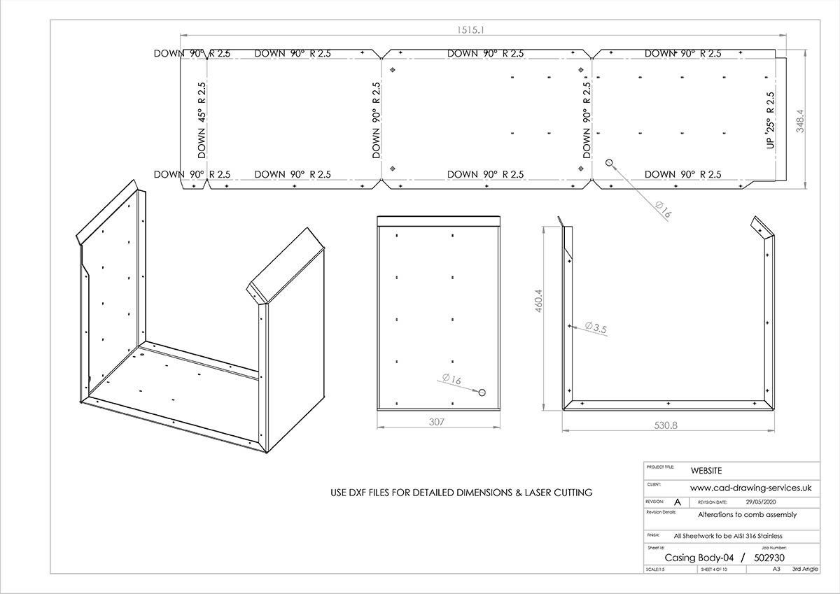
Fabrication DrawingsList Item 4
Now the 3D model is complete 2d fabrication drawings & dxf files can be produced. Many different variations of the same assembly can be saved with different names.











